vissza - back

UGM művészeti galéria új épülete
New UGM Art gallery
2010, Maribor
Új gyalogos és kerékpáros híd
New footway and bicycle bridge
2010, Maribor
Kelenföldi Pu. Térsége - III. Díj
Development Of Kelenföld Area - 3rd Prize
2007, Budapest XI.
Pesthidegkút Városközpont - Megvétel
Pesthidegkút City Center - Acknowledgement
2006, Budapest II.
Szálloda a Clark Ádám téren
Hotel On The Clark Ádám Square
2007, Budapest I.
Vendéglátóközpont
Visitor Center
2006, Pannonhalma
Paskál Lakópark
Paskál urban residences
2004, Budapest XIV.
Petermann Bíró U., Lakóház
Petermann Bíró Street, apartment building
2006, Budapest I.
Zugló Városközpont "Szupermutárgy"
"Superobject" Zugló City Center
2004, Budapest XIV.
Zugló Városközpont
Zugló City Center
2004, Budapest XIV.
Corvin-Szigony sétány - I. díj
Corvin-Szigony Avenue - 1st prize
2003, Budapest VIII.
Szociális Lakások - II. díj
Social Housing - 2nd Prize
2003, Pécs
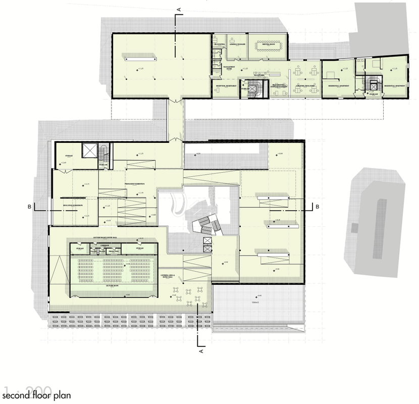
Regionális Vérellátó Központ
Regional Blood-Supply Center
2004, Pécs
Kőérberek lakóterület fejlesztése
Kőérberek Residential region develompent
2001, Budapest XI.